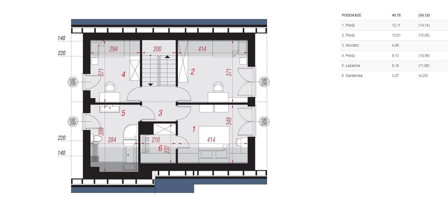
Dom Klara
Dom "KLARA" - Stan Zamknięty
POWIERZCHNIA UŻYTKOWA: 130 M2
• Na parterze: salon z aneksem kuchennym oraz jadalnią, 2 pokoje, łazienka,wiatrołap
• Na poddaszu: 2 pokoje, łazienka
• Projekt wraz z kompletną dokumentacją
• Szkielet domku wykonany z drewna C24,przekrój belek 4,5×14,5cm
• Obicie szkieletu płytami OSB
• Konstrukcja dachu domku z drewna, przekrój belek 4,5×19,5cm
• Obicie dachu płytami OSB
• Pokrycie dachu blachodachówką/blachą narąbek
• Ekskluzywna stolarka okienna trzyszybowa
• Montaż drzwi zewnętrznych
• Ponadczasowa elewacja
Koszt: 249 000zł
Dom "KLARA" - Stan Deweloperski
POWIERZCHNIA UŻYTKOWA: 130 M2
• Na parterze: salon z aneksem kuchennym oraz jadalnią, 2 pokoje, łazienka, wiatrołap
• Na poddaszu: 2 pokoje, łazienka
• Projekt wraz z kompletną dokumentacją
• Szkielet domku wykonany z drewna C24,przekrój belek 4,5×14,5cm
• Obicie szkieletu płytami OSB
• Konstrukcja dachu domku z drewna, przekrój belek 4,5×19,5cm
• Obicie dachu płytami OSB
• Pokrycie dachu blachodachówką/blachą narąbek
• Ekskluzywna stolarka trzyszybowa
• Trzyszybowe okna połaciowe VELUX
• Montaż drzwi zewnętrznych
• Ponadczasowa elewacja
• Ocieplenie podłogi styropianem 15cm
• Ocieplenie ścian zewnętrznych styropianem 15cm
• Ocieplenie ścian wewnętrznych wełną 15cm
• Ocieplenie poddasza wełną 20cm
• Obicie ścian wewnętrznych płytami g-k
• Ściany działowe
• Posadzki
• Instalacja elektryczna
• Instalacja hydrauliczna
• Instalacja antenowa i sieciowa
Koszt: 399 000zł
Dom "KLARA" - Stan Pod Klucz
POWIERZCHNIA UŻYTKOWA: 130 M2
• Na parterze: salon z aneksem kuchennym oraz jadalnią, 2 pokoje, łazienka, wiatrołap
• Na poddaszu: 2 pokoje, łazienka
• Projekt wraz z kompletną dokumentacją
• Szkielet domku wykonany z drewna C24,przekrój belek 4,5×14,5cm
• Obicie szkieletu płytami OSB
• Konstrukcja dachu domku z drewna, przekrój belek 4,5×19,5cm
• Obicie dachu płytami OSB
• Pokrycie dachu blachodachówką/blachą narąbek
• Ekskluzywna stolarka trzyszybowa
• Trzyszybowe okna połaciowe VELUX
• Montaż drzwi zewnętrznych
• Ponadczasowa elewacja
• Ocieplenie podłogi styropianem 15cm
• Ocieplenie ścian zewnętrznych styropianem 15cm
• Ocieplenie ścian wewnętrznych wełną 15cm
• Ocieplenie poddasza wełną 20cm
• Obicie ścian wewnętrznych boazeria lub płytami g-k
• Ściany działowe
• Posadzki
• Instalacja elektryczna
• Instalacja hydrauliczna
• Instalacja antenowa i sieciowa
• Malowanie
• Szpachlowanie
• Montaż paneli/płytek podłogowych
• Montaż listew przypodłogowych
• Kompleksowo wykończona łazienka (montaż płytek, biały montaż)










